Yapı elemanlarından gelen yükleri zemine güvenle aktarmak amacıyla oluşturulan elemanlara temel denir.
Temel tasarımı yapılırken; zemin özellikleri, zeminin taşıma gücü yani zemin parametreleri, yapı yükü, yapı yükünden dolayı oluşabilecek oturmalar, bölgenin deprem sınıfı, çevresel faktörler gibi zemin ve yapı parametreleri göz önüne alınarak, zemin ile ilgili gerekli hesapların yanı sıra, zemin – yapı ilişkisi göz önünde bulundurularak temel tasarımı yapılmalıdır. Yapı taşıyıcı elemanlarının temelden zemine ilettiği yükler, zemin ile temasta olan yüzeylerin, yapı taşıyıcı elemanlarından yeterince daha geniş bir yüzeye sahip olacak şekilde, yapıdan gelen yükleri zemine dağıtması, bu şekilde zeminde oluşacak gerilmelerin zemin emniyet gerilmesini aşmaması gerekir.
Temel tasarımı öncesi yapının oturacağı bölgede zemin etütleri yapılmalıdır. Zemin etüt raporları incelendikten sonra proje aşamasına geçilebilir.
Ancak unutulmamalıdır ki; elimizde zemin etüt raporu olsa dahi uygulama öncesi veya uygulama sırasında zeminde zemin etüt raporundan farklı özelliklere sahip bir zemin türü olup olmadığını gözlemleyerek en azından genel bir kanıya varmamız gerekli olabilir. Sağlam zeminin tabii zeminden 3 m. aşağıda olduğu belirtilip, kazı esnasında 3m. indikten sonra raporda belirtilen sağlam zemine rastlamıyorsak ya mevcut zemine göre tekrar hesap yapılıp uygunluğu kontrol edilmeli ya da sağlam zeminin ne kadar derinde olduğu tespit edilip temel kotunu sağlam zemine göre değiştirmeli veya uygun temel çözümü, zemin ıslahı (güçlendirmesi) gibi çözümlemeler yapılmalıdır.
Bu yazımızda ve sitemizde sık sık kullanacağımız “zemin emniyet gerilmesi” ve “zemin taşıma gücü” tanımlarına kısaca değinmemiz ve anlaşılma kolaylığı için ne şekilde kullandığımızdan bahsetmemiz gerekiyor.
Öncelikle zemin emniyet gerilmesi ile ilgili; zemin homojen bir malzeme olmadığından ve her noktada farklı özellik gösterebileceğinden ve bu değerlerin yapı yükünün zemine iletilme şekli , temel tipi, yapı yükü vb. durumlara göre değişeceğinden, zemin emniyet gerilmesi derken aslında bu etkenler göz önüne alınarak hesaplanan emniyetli taşıma gücünden bahsetmekteyiz. Temelin oturduğu zeminde, zeminin yapı için zararlı olabilecek oturmalar veya farklı oturmalara karşı yapıyı etkilemeyen, zeminin göçmesine neden olacak zemin gerilmesinden güvenli tarafta kalmak amacıyla yeteri kadar küçük gerilme değeridir de diyebiliriz.
Günümüzde konu ile ilgili hem hesaplamalarda, hem uygulamalarda bir çok yanlış yapılabilmektedir. Zemin etüdü yapılırken asıl olan sadece zemin değerlerini irdelemek değil, zemin ve temel değerlerini irdeleyerek zemin ve temel etüdü şeklinde yapılması gerektiği bir gerçektir. Zemin – temel – yapı etkileşimi bir arada düşünülmek zorundadır.
Maalesef ülkemizde zemin etüt raporlarının birçoğu gerçeği yansıtmamakta ve temel – yapı tasarımı ile ilgili yeterli olmamaktadır. Zemin etütleri ile ilgili; bir çok alanda uzmanlaşmış inşaat mühendisi olması gerektiği gibi (altyapı mühendisi, yapı mühendisi vb.) zemin (geoteknik) alanında uzman ve yetkin inşaat mühendisleri tarafından zemin etüdü yapılması gerekmektedir. Yani emniyetli taşıma gücü ile zemin emniyet gerilmesi farklı olsa da biz çoğu yerde zemin emniyet gerilmesinden bahsederken aslında emniyetli taşıma gücünden bahsetmiş olacağız. Konu ile ilgili bazı kaynaklar yazının en altında mevcuttur.
Zemin taşıma gücü ile ilgili; Asıl olan zeminin taşıma gücü değil temelin taşıma gücünün olduğu ve bahsettiğimiz emniyetli taşıma gücünden kastın ise; temelin yapıyı, zeminde çökme, yapıya zarar verecek kadar oturma vb. durumlar olmadan emniyetle taşıyabilmesidir. Zemin çoğunlukla homojen olmadığından aslında zeminin taşıma gücünden bahsetmek pek doğru olmaz. Ancak oluşturulacak yapı sonuç olarak bir zeminin üzerinde olması ve bir nevi zeminin yapıyı taşımasından dolayı bu terim kullanılır. Oluşturacağımız temel sistemi ile yapıdan gelen yükleri zemine dağıtma sistemimiz ile temelin yapıyı emniyetle taşıması sağlarız. Zemin taşıma gücü tanımı ile bahsettiğimiz bölümlerde asıl kasıt budur.
Yani zemin emniyet gerilmesinden kastın; yapı yükünün oluşturacağı, temelden zemine temel etki alanınca her nokta için zeminde ve dolayısıyla yapıda hasar meydana getirmeyecek gerilmelerin aşılmadan emniyetle aktarılması; zemin taşıma gücüyle ilgili kastın ise, temel taşıma gücünün zeminde yapıya zarar verebilecek deformasyonlar meydana getirmeden yani zeminin yapıyı taşıyabilmesi için uygun temel sistemi ile yapı yükünü zemine emniyetle aktarmasıdır.
Buradan çıkarmamız gereken şudur; zemini hesaba katmadan tasarladığımız temel, yapıyı pek ala rahatlıkla taşıyabilecek kapasitede olabilir. Ancak, örneğin zemin çöktüğü takdirde temel yapıyı emniyetli şekilde taşıyamamış olur. Bu nedenle önemli olan zemin – temel – yapı etkileşimini dikkate alarak hesap yapmaktır. Temele aktarılan yüklerin zemine ne şekilde aktarılacağı, zeminde oluşacak gerilme değerlerini değiştirecektir. Bu nedenle temellerin emniyetli taşıma gücünün, temelden zemine aktarılan yüklerin zemin emniyet gerilme değerlerini aşmaması gerekir.
Temeller; yüzeysel temeller ve derin temeller olmak üzere 2 gruba ayrılır.
YÜZEYSEL (Sığ) TEMELLER
Zemin yüzeyine yakın derinlikte inşa edilen temellerdir. Genel itibariyle iyi denilebilecek (derin temellerin uygulandığı zeminlere göre) zeminlerde uygulanır. Uygulanan bölgedeki don derinliği dikkate alınarak temel üst kotunun, toprak üst kotundan en az don derinliği kadar aşağıda olması gerekir.
DUVAR ALTI TEMELLERİ
Yığma kagir yapılarda veya herhangi bir yapıdan bağımsız olan taşıyıcı duvarların altında, bu duvarlardan daha geniş bir alana sahip ve taşıyıcı duvar yükünü zemine güvenli bir şekilde aktarmak için oluşturulan elemanlardır. Bu tip temellere “duvar altı temeli” denir.
TS 500’de duvar altı temeller ile ilgili aşağıdaki hususlar belirtilmiştir:
Ayrıca ilgili yönetmeliklerden bazı diğer bilgileri de edinebilirsiniz. (Örneğin; İlgili deprem yönetmeliği)
Duvar Altı Temeli
TEKİL (Münferit) TEMELLER
Yapı yüklerinin hafif, temele kadar gelen düşey taşıyıcı elemanların kolon veya kısa perde olduğu (yani en alt katta -bodrum kat perdelerine benzer- perdelerin olmaması vb. durumlar), zeminin zayıf olmadığı koşullarda kolonların altına kolon en kesitinden daha büyük betonarme plakların (pabuç veya sömel de denir) yapıldığı temellere “tekil temel” denir. Zımbalama kontrolleri yapılmalıdır. Bu tip temellerde farklı oturma riski çok yüksektir. Bu nedenle ve deprem kuvvetini aktarması için, her iki yönden bağ kirişler ile birbirlerine bağlanması zorunludur. Çok sağlam, sert kaya bulunan zeminlerde bağ kirişler yapılmayabilir veya azaltılabilir.
TS 500’de tekil temeller ile ilgili aşağıdaki hususlar belirtilmiştir:
BİRLEŞİK TEMELLER
Kolon yüklerinin büyük olduğu, kolonların birbirine yakın olduğu veya bölgesel zeminin zayıf olduğu durumlarda iki kolonun altına tek bir sömel imalatı yapılır. Bu tek sömel iki kolondan gelen yükleri alır ve zemine uniform bir şekilde iletir. Bu tip temellere “birleşik temeller” denir. Eksenel kuvveti yüksek olan kolon tarafında sömel daha geniş yapılarak zemin gerilmesinin sömel altında uniform olması sağlanır.
Birleşik Temeller
SÜREKLİ (Mütemadi) TEMELLER
Zeminin daha zayıf, kolon mesafelerinin daha yakın veya yapı yüklerinin daha fazla olduğu durumlarda kullanılır. Bir veya birden fazla doğrultudaki düşey taşıyıcı elemanların altına kirişli veya kirişsiz plaklar düzenlenerek taşıyıcı elemanlardan gelen yükleri zemine yeterli rijitlikte aktaran temellere “sürekli temel” denir. Sürekli temellerde farklı oturma riski tekil temellere göre daha azdır. Birkaç katlı yapılarda farklı oturmaların önüne geçilebilir ancak yine de yüksek yapılarda bu risk fazladır.
Bir doğrultuda olan sürekli temellere “şerit temel” adı verilir. Temelleri her iki doğrultuda da birbirine bağlamak zorunluluğu olduğundan bir doğrultuda sürekli temel yani şerit temel yapılır ancak diğer doğrultuda temeller birbirlerine bağ kirişleri ile bağlanır.

Bir doğrultuda sürekli temel (şerit temel)
Birden fazla (çift) doğrultuda olan temellere ise “alan temeli” adı verilir.
Çift doğrultuda sürekli temel (alan temeli)
Şerit Temel (Tek doğrultuda) Alan Temeli (Çift doğrultuda)
TS 500’de sürekli temeller ile ilgili aşağıdaki hususlar belirtilmiştir:
Yapı – Temel – Zemin Etkileşimleri
Tekil, Birleşik ve Sürekli Temeller
RADYE TEMELLER
Zeminin çok zayıf olduğu veya yer yer değişkenlik gösterdiği, yapı yüklerinin fazla olduğu, yapının bütün düşey taşıyıcı elemanlarının tek bir temele oturtulduğu temel türlerine “radye temel” denir. Ancak günümüzde sadece zayıf zeminlerde değil, sağlam zeminlerde dahi en çok kullanılan temel türüdür. Radye jeneral temel olarak da isimlendirilir. Yüksek katlı yapılarda tercih edilebilir. Temelde farklı oturma riski düşüktür. Diğer temel türlerine göre daha fazla temel alanına sahip olduğundan, yapı yükünü temel alanınca yayarak, yapı yükünden dolayı zeminde oluşacak gerilmeler de azaltılmış olur. Bu nedenle yayılı temel de denir. Zemin emniyet gerilmesi küçük olan zeminlerde tercih edilme sebebi budur.
⇒ Kirişsiz (Düz) Radye Temel
Yapı oturum alanını kapsayan (şartlar elverdiği sürece yapı oturum alanından her yönde daha geniş -konsol- olarak yapılır) bütün düşey taşıyıcı elemanların direkt olarak kalın bir plağa oturduğu, ters yerleştirilmiş plak (döşeme) şeklinde çalışan radye temel çeşitidir.
Kirişsiz düz radye temellerde en önemli sorun kolon bölgelerinde oluşabilecek zımbalama etkisidir. Bu nedenle plak kalınlığını, zımbalama etkisini göz önünde bulundurarak ve zımbalama kontrolünü yaparak belirleyip, zımbalama etkisinin önlenmesi sağlanmalıdır. Bazı durumlarda örneğin; bir kaç kolonda zımbalama etkisine karşı kolon başlığı yapılarak o kolonların zımbalama bölgelerinde plak kalınlığı arttırılabilir.
“Kirişsiz Radye Temel Donatı İmalatı” adlı yazımızı inceleyerek daha geniş bilgi edinebilirsiniz.
Kirişsiz Radye Temel Kesiti
Kirişsiz Radye Temel Uygulama Örnekleri
⇒ Kirişli Radyeler
Üstten kirişli ve alttan kirişli radyeler olmak üzere 2’ye ayrılır. Kalıp işçiliği bakımından daha zahmetli olsa da kirişsiz radyelere göre daha emniyetlidir. Kirişsiz radye temellerde bahsettiğimiz gibi plak ve/veya kirişlere konsol yapılabilir. Genelde kirişsiz (düz) ve üstten kirişli radye temeller tercih edilir.
· Üstten Kirişli (Düz Kirişli) Radye Temel
Yapının düşey taşıyıcı elemanlarının kirişlere, kirişlerin de yapı alanının tamamını kaplayan bir plağa oturtulmasıyla oluşturulan radye temel çeşitidir.
Kesit
Üstten Kirişli Radye Temel
· Alttan Kirişli (Ters Kirişli) Radye Temeller
Alttan kirişli radye temellerde düşey taşıyıcı elemanlardan gelen yük plağa, plaktan da kirişlere aktarılır.
Alttan kirişli radye temellerde bodrum kat tabanında düz bir yüzey elde edilir ve daha az hafriyat yapılır. Örneğin; temel alanımızda kirişler arasında kalan bölgelerin sert kaya olduğunu farz edelim. Bu temel uygulaması ile hafriyattan, dolayısıyla zamandan vs. kazanç sağlamış oluruz. Yine de pek tercih edilen bir temel türü değildir.
Üstten kirişli radye temele göre genel itibariyle statik açıdan daha sağlıksızdır. Temel plak alanı tüm zemini kaplamadığından dolayı zemin gerilmeleri, aynı koşullardaki kirişsiz veya üstten kirişli radye temele göre tüm temel alanı için uniform yayılmaz ve gerilmeler daha yüksek olur. Zeminde değişkenlik var ise farklı oturmaların meydana gelme ihtimali kirişsiz ve üstten kirişli radye temellere göre daha fazladır. Temel zemini, temelde kayma meydana getirebilecek bir özelliğe sahipse (ki bu oldukça zayıf bir zemin olmalı), zemin iyileştirme, kazık vb. yöntemler uygulanmalıdır. (Her tip yüzeysel temel için geçerli)
Alttan kirişli radye temelleri şöyle düşünebiliriz;
Kirişli sürekli temel (çift doğrultuda) düşünün. Temel imalatından sonra kirişler arası dolgu yapar sonrasında grobeton vb. malzeme ile bodrum tabanında düz bir yüzey elde etmeye çalışırız. Kirişli sürekli temel imalatı yaparken kirişlerin arasında boşluk olmaması için bu aralıkları kazmayıp, tüm temel alanını kapsayan bir plak imalatı yaptığınızı düşünün. Tek fark sürekli temellerdeki gibi kiriş altında plak olmaması olur. Bu da demektir ki yapı yükü zeminde daha ufak bir alana yayılacak ve zemin gerilmeleri yüksek olacaktır. Tabi kiriş üzerindeki plaklar yükün bir kısmını alsa da uniform bir dağılım elde etmek zordur. Ancak sadece somut değerler üzerinden konuşmak yanlış olur. Gerekirse kiriş altına plak yapılabilir, kiriş ebatları değişebilir. Zemin değerleri, yapı yükü vs. gibi koşullar göz önüne alınarak gerekli önlemler sağlanabilir. Mesela zeminde şişme problemi varsa diğer koşullar ile birlikte değerlendirilip alttan kirişli radye temel sistemi uygulanarak zemindeki şişme sebebiyle binanın zarar görmesi engellenebilir.
Alttan Kirişli Radye Temel Kesiti
⇒ Mantar Şeklinde Radye Temeller
“Kirişsiz Radye Temel Donatı İmalatı” adlı yazımızda, kirişsiz radye temellerde en önemli sorunun zımbalama olduğundan ve zımbala kontrolü yapıldığında plak kalınlığı yetersiz olan bazı kolonlara başlık veya tabla yapılabileceğinden bahsetmiştik. İşte bu şekilde kirişsiz (düz) radye temellerde kolon bölgelerinde oluşan zımbalama etkisinden dolayı, kolonun plağa aktardığı yükü daha geniş bir alana yaymaya ve böylece zımbalama kuvvetine karşı önlem almamızı sağlar. Yani bu demek oluyor ki, zaman zaman kirişsiz (düz) radye temellerde birkaç kolon için (Bu tercihe bağlıdır. Birkaç kolon için plağın kalınlığını arttırmamak ve fazla maliyet oluşturmamak için bu şekilde önlem alınabilir.) bu uygulama yapılabilir.
Kısacası, zımbalama etkisine karşı kolon altına eğimli veya eğimsiz (belirli hesaplara dayanarak) yapılan başlıkların olduğu kirişsiz radye temellere mantar şeklinde radye temeller denmektedir. Bu başlıklar genelde plağın üstüne yapılır. Ancak bodrum kat tabanında düz bir yüzey elde edilmemiş olacaktır. Kimi zaman da plağın altında kalacak şekilde uygulanırlar. Böyle bir uygulamada radye kazı işinin çok düzgün yapılması gerekir. Radye temel plağı altında boşluk veya örselenmiş zemin kalmamalıdır.
Kesit
Mantar Radye Temel
⇒ Ters Kemer Şeklinde Radye Temel
Kirişsiz (düz) radye temel plağının ters tonoz şeklinde uygulanmasıdır. Ters tonoz şeklinde plak temeller diyebiliriz.
Tonoz ve kubbeler ince olmalarına rağmen düz plağa nazaran taşıma gücü yüksek sistemlerdir. Kabuklarda yük genelde düzgün yayılıdır ve düz plağa göre moment değerleri çok düşüktür.
Uygulama zorlukları vardır. Temel zemini kabuk formuna tam uyacak şekilde hazırlanmalıdır. Düzgün, özenli işçilik ve dolayısıyla maliyet gerektirir. Kabuk her noktada zemine oturmalıdır yani ters tonoz plakların altında boşluk kalmamalı ve örselenmiş zemin oluşturulmamalıdır. Zemin gerilmesinin uniform olması sağlanmalıdır. Bu nedenlerden dolayı uygulaması zor, hata payı yüksek ve risklidir. Günümüz yöntem ve teknolojisinde uygulamasının zorunlu olduğu haller yoktur. Tercih edilmeyen bir temel türüdür. (Konu ile ilgili Sayın Prof. Dr. Ahmet Topçu‘nun verdiği bilgiler için kendilerine minnettarız.)
Ters Kemer Şeklinde Radye Temel – Kesit
⇒ Rijit Perde Duvarlı (Hücresel) Radye Temeller
Bodrum katı olan yapılarda, bodrum katın zemin içerisinde kalmasından dolayı yanal zemin yüklerini de taşıyabilecek perdeler yapılır. Bu perdeler yapı betonarmesi ile kiriş ve döşemeye (bodrum kat tavanı) bağlanarak beraber çalışır. Bu tür temellere rijit radye temel denmektedir. Kirişsiz (düz) radye temel olarak imalat yapılır. Tek farkı bu temelin doğal zemin kotundan derinde olması ve zemin içerisinde kalmasından dolayı perde, kiriş ve tabliye imalatı yapılmasıdır. Yapı yükleri üst katlardaki kolon ve perdelerden temele oturan bir perde sistemine ve oradan da temele aktarıldığı için yükler temele daha uniform bir şekilde dağılıp zemin gerilmesini düşürecek böylece zeminin taşıma kuvvetini yani temelin emniyetli taşıma gücünü arttırıp, oluşabilecek oturmaları da minimize etmiş olacaktır. Bu şekilde rijit bir temel elde edebiliriz. Bu perdeler duruma göre sadece yapı çevresini saracak şekilde veya üstten kirişli radye temellerde kirişlerin yetersizliği gibi durumlardan dolayı hücresel olarak (bütün akslar boyunca) yine perde, kiriş ve döşeme şeklinde oluşturulur.
Rijit Temel

Aslında bodrum katı (zemin içerisinde kalan) bu yapıları belirttiğimiz gibi bir nevi rijit temel olarak adlandırabiliriz.
Üstten kirişli radye temellerde kiriş yüksekliklerinin yetersiz olduğu durumlarda veya kirişleri yüksek yapmamız gereken durumlarda bu kirişlerin yüksek yapılması yerine perde yapılarak burulmayı önlemek için üst kısımlarına kiriş ve plak oluşturacak şekilde burulmanın önüne geçilir.
Yani rijit temeller sadece bodrum kat kullanılacak yapılar için yapılmaz. Örneğin; statik hesaplar ve zemin parametrelerine göre bir rijit temel yapmamız gerekiyor ise ve bu rijit temel zeminden derinde ancak bodrum kat yüksekliğinin yetersiz olacağından dolayı bodrum kat olarak kullanılamayacak ise aynı şekilde hücreli rijit temel uygulaması yapılır ve bu perdeler arası uygun malzeme ile doldurulur. (Subasman perdeleri gibi)
Rijit Radye Temel
DERİN TEMELLER
Yapı yükünü taşıyamayacak, zemin gerilmeleri yapı yüklerinden dolayı oluşacak gerilmeleri karşılayamayacak durumda olan (yani yapıdan dolayısıyla temelden gelen yüklerin zeminde oluşturacağı gerilmelerin, zemin emniyet gerilmesinden büyük olması durumu) zayıf zeminlerde; yapı yüklerini taşıyabilecek sağlam zemin, sağlıklı bir zemin iyileştirmesi yapılamayacak kadar derindeyse, yapı yüklerini sağlam zeminin taşımasını sağlamak amacıyla derin temeller oluşturulur.
AYAK TEMELLER
Sağlam zeminin kazık gerektirmeyecek kadar derinde olmayıp; yine sağlam zeminin, bütün derin temeller için geçerli olan, zemin iyileştirmesinin sağlıklı olmayacağı kadar derinde veya yapılacak zemin iyileştirmesine rağmen risk devam ediyorsa gerekli hesaplar yapılarak sağlam zemine kadar kazı yapılır ve ayak temeller sağlam zemine oturtulur. Ayak temeller üst kısımda betonarme kirişler ile birbirine bağlanmalıdır.
Ayak Temeller
Maliyet ve işçilik, zeminin emniyet gerilmeleri vb. etkenler göz önüne alınarak, temel pabuçları tekil temellerdeki gibi düz, eğimli veya ampatmanlı bir şekilde uygun ebatlarda oluşturulur. Gerekirse üstten betonarme kirişlerle bağlanmasına rağmen, alttan da bağ kirişlerle bağlanabilir. Hatta gerekiyorsa ayak temelleri bir plağa oturtulabilir. Bu ve benzeri durumlar zemin ve yapı parametreleri dikkate alınarak gerekli görüldüğü takdirde uygulanmalıdır.
KAZIKLI TEMELLER
Çok zayıf zeminlerde, sağlam zeminin çok derinde olmasından dolayı, yapı yükünü sağlam zemine aktarmak için çeşitli metotlar ile kazık temel sistemi uygulanır. Yapı yükleri ya uç kazıklarla ya da kazığın yan yüzeylerinin sürtünmesiyle (yanal sürtünme) zemine iletilir. Bu kazıklar üst kısımda betonarme kirişler veya plak ile birbirlerine bağlanır. Betonarme, çelik ve ahşap kazık türleri mevcuttur.
Yüklerin zemine aktarılış şekline göre:
· Uç Kazığı
· Sürtünme Kazığı
· Kombine Kazık
Yük taşıma şekline göre:
· Basınç Kazığı
· Çekme Kazığı
Yapıldıkları malzemeye göre:
· Betonarme Kazıklar (Yerinde dökme veya öndöküm)
· Çelik Kazıklar
· Ahşap Kazıklar
Zemin cinsi ve yapı özelliklerine göre değişen imal şekline göre:
· Çakma Kazıklar
· Delme Kazıklar (Fore)
— Kaplama Borusu Kullanılmayan Kazıklar
– Kompres Kazıklar
– Kornart Kazıklar
– Ekspres Kazıklar
— Kaplama Borusu Zeminde Kalan Kazıklar
– Raymond Kazıklar
– Mansart Kazıklar
– Stren Kazıklar
– Jansen Kazıklar
– Alborenz Kazıklar
– Benoto Kazıklar
— Kaplama Borusu Çıkartılan Kazıklar
– Sipleks Kazıklar
– Wolfholz Kazıklar
– Straus Kazıklar
– Franki Kazıklar
– Pedestal Kazıklar
– Kombine Kazıklar
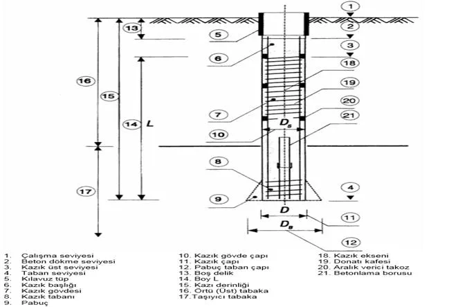
En yaygın kullanılan kazık temel ise fore kazıklardır. Fore kazıklar yerinde dökme betonarme kazıklar sınıfındadır.
Fore kazıklar özetle şu şekilde imal edilir:
Kaplama borusu kullanılmayan, kaplama borusu zeminde bırakılan ve kaplama borusu zeminden çıkartılan olmak üzere 3 şekilde yapılır. Boru kullanımının yetersiz olduğu durumlarda bentonit yardımıyla uygulama yapılır.
Sağlam zemine kadar fore kazık delikleri açılır ve içine demir donatılar konularak beton dökülür. En üstte filizler bırakılarak üst tabakada betonarme elemanlar (kirişler veya radye temel) ile birbirlerine bağlanır.
Delme (Fore) Kazık Uygulama Aşamaları
Kazık temeller ile ilgili birçok yöntem mevcuttur. Türkiye Binalar Deprem Yönetmeliği’nde (Taslağı yayınlandı) bu temel sistemlerine değinilmiş olup mutlaka incelenmesi gerekir.
Ayrıntılı bilgi için en altta belirttiğimiz kaynakları inceleyebilirsiniz.

Fore Kazık – Gösterimler
Fore Kazık Uygulama Resimleri
Keson Temeller
Kelime anlamı sandık olan kesonlar çok zayıf, gevşek veya sulu zeminlerde ve su içinde oluşturulacak temel imalatlarında kullanılırlar. Kazık temellerin yapılmasının uygun olmadığı veya yetersiz olduğu durumlarda keson temeller kullanılır. Betonarme, çelik veya ahşaptan yapılabilen, büyük çapta dairesel ve içi boş kesonlar zemine veya suya çeşitli yöntemlerle sağlam zemine kadar batırılır. Üst üste konularak yerleştirilir. İçindeki toprak vs. boşaltıldıktan sonra beton veya taş – beton vb. malzemeler ile doldurulur. Betonarme keson temeller yerinde döküm yapılarak veya ön döküm şeklinde imal edilebilirler. Maliyeti oldukça yüksektir. Genelde köprü ve liman inşaatlarında kullanılırlar.
Açık (kuyu) kesonlar, pnömatik (hava basınçlı) kesonlar ve yüzen (sandık) kesonlar gibi keson temel tipleri mevcuttur.
Yerinde dökülen betonarme keson temeller
Önceden hazırlanan kesonun batırılması
Keson Temel Uygulama Şekilleri
Keson temeller ile ilgili ayrıntılı bilgi için en altta belirttiğimiz kaynakları inceleyebilirsiniz.
Not: Anlatımlarımızdan zemin sağlam ise tekil temel kullanılmalı, zayıf ise radye temel kullanılmalı veya az katlı bir yapıysa radye temel kullanılmaz gibi anlamlar çıkarılmamalıdır. Örneğin; kaya zemine sahip bir bölgede kazıklı temel uygulanmayacaktır gibi bir kaide yoktur. Zemin – temel – yapı etkileşimi göz önüne alınarak, gereken analizlerin yapılarak karar verilmesi gerekir.
Deprem Yalıtımlı (İzolatörlü) Temeller
Yapının temele bağlanan en alttaki kolonlarının altına, ortasına veya üstüne deprem izolatörü yerleştirilerek yapılır. Sismik izolatör adı da verilen bu sistemlerin çeşitli uygulama teknikleri mevcuttur. Bu izolatörler deprem esnasında zeminde meydana gelen deprem hareketlerini üst yapıya mümkün olduğunca az yansıtır, böylece taşıyıcı elemanlara etki eden deprem kuvvetlerini azaltırlar. Depremden dolayı meydana gelen enerjiyi sönümlerler. Bitişik nizam yapılarda çarpışmaya sebebiyet vermemek için kullanılmazlar.
Bütün yapılarda amaç, depremin meydana getirdiği enerjiyi yapıda olabildiğince az zarar meydana getirecek şekilde veya yapının bir anda çökmesini değil de olası çökmenin yapı içerisinde bulunan canlıların hayatlarını kurtaracak, kaçmalarını sağlayacak bir zaman dilimi içerisinde oluşmasını sağlayabilmek. yani canlılara kaçıp canlarını kurtarabilecek kadar zaman sağlayabilmektir. Bu nedenle bir inşaat mühendisi yaptığı her işte en kötü durumu düşünerek, hesaplayarak insan ve diğer canlı hayatlarının sorumluluğunu üstlenmeli ve buna göre mühendisçe davranmalıdır.
Bu sebeple tasarımlarımız, yapı – temel – zemin etkileşimi göz önünde bulundurularak, çeşitli prensip (sünek yapı, güçlü kolon zayıf kiriş, temel tasarımı, zemin özellikleri) ve ilkeler ile oluşturulmalı ve bütün yapılarımızda ilk ve en büyük amaç yukarıda bahsettiğimiz gibi can kayıplarını önlemek olmalıdır.
İzolatörlü temel sistemleri ise deprem enerjisini diğer sistemlere göre çok iyi sönümleyerek, üst katlarda ve katlar arasında farklı yer değiştirmeleri minimize ederek yapıya gelen deprem yüklerini ve etkilerini oldukça indirger. Bu nedenle bu tür yapılar sınırlı süneklik düzeyine göre tasarlanabilir.
İzolatörlü temeller yatay kuvvetlere karşı esnek davranırlar ancak düşey kuvvetlere karşı rijittirler. Deprem yalıtım sistemlerinde çekme kuvveti oluşmaması gerekir.
Deprem izolatör yöntemlerinin; kurşun çekirdekli kauçuk esaslı izolatörler, kayıcı tabakalı kauçuk izolatörler, çelik bilyalı izolatörler, sürtünmeli sarkaç tipi veya düz yüzeyli izolatörler gibi çeşitli tip ve metotları bulunsa da 2 ana ögeye ayrılırlar:
1. Kauçuk Esaslı Deprem İzolatörleri
2. Sürtünme Esaslı Deprem İzolatörleri
Türkiye Binalar Deprem Yönetmeliği’nde (Taslağı yayınlandı) bu temel sistemlerine değinilmiş olup mutlaka incelenmesi gerekir.
Konu ile ilgili daha geniş bilgiler için yazının en altındaki kaynakları inceleyebilirsiniz.
Deprem Yalıtımlı Temel Uygulanan Yapıların Deprem Sırasındaki Davranışları
Deprem İzolatörleri – Uygulama
Ek olarak sönümleyici cihazlar;
Deprem yalıtımlı temellerin dışında temeller ile beraber üst yapı da da uygulanabilen sönümleyici cihazlar (damper sistemleri veya sismik damper de diyebiliriz) da depreme karşı izolatörler gibi yatay deprem, rüzgar vb. durumlarda oluşan enerjiyi sönümlemek için kullanılan bir sistemdir. Ancak bu damper sistemlerinin üstyapıda çalışma şekli temelde uygulanan izolatörler gibi esnek değil tam tersi rijittir ve deprem izolatörlerinin tersine bitişik nizam yapıların çarpışmasını engellemek gibi bir işlevleri vardır.
Konu ile ilgili daha ayrıntılı bilgiye yazının en altındaki belirttiğimiz kaynaklardan ulaşabilirsiniz.

Sismik Damper Sistemleri
Belirtmek isteriz ki;
ODTÜ Mühendislik Bilimleri Bölümü öğretim üyelerinden Sayın Prof. Dr. Murat Dicleli “Sismik Damper” olarak anılan bir buluşa imza atmıştır. MRSD olarak adlandırılan bu damper sistemleri (sismik sönümleyiciler) benzer amaçla kullanılmak üzere pazarlanan yabancı kaynaklı ürünlere kıyasla çok daha iyi bir performansa sahiptir. Testleri Almanya’da Münih Harp Akademisinde Maurer Söhne firmasının sorumluluğunda gerçekleştirilmiştir. Mevcut teknolojide yer alan benzeri ürünlerin dayanımı 25 – 50 yıl arasında değişirken bu ürünlerin dayanımı ise 125 yıldır.
Konu ile ilgili daha ayrıntılı bilgiye yazının en altındaki belirttiğimiz kaynaklardan ulaşabilirsiniz.
Özel Temeller
Çeşitli temel tiplerinin tasarımı ile oluşturulmuş, çeşitli metotlar kullanılarak; büyük açıklıklı yapılarda, titreşimli yüklere maruz kalan yapılarda, deprem veya heyelan riski yüksek olan bölgelerde, zemin ve yapı özelliklerine dayanarak oluşturulan veya özel tasarım ve metotlar kullanılarak bir anlamda sınırların dışına çıkan, nadir yapılarda uygulanan temellerdir.
Bu konu ile bağlantılı olarak Baret Temeller:
Baret temellerin imalatı genel anlamıyla fore kazıklara benzer; “del, donatıyı yerleştir, betonla.”
Ancak baret temelleri fore kazıklardan ayıran özellikleri vardır. Bunlar kazı (delgi) yöntemi ve farklı geometrik şekillerde uygulanmasıdır.
Aynı kesit alanına sahip fore kazıklara kıyasla daha fazla sürtünme alanına sahiptirler ve uygulama şekillerine göre daha büyük düşey ve yatay yükleri karşılayabilme kapasitesine sahiptirler. Ülkemizde uygulaması giderek yaygınlaşmaktadır.
Baret Temeller Uygulama Aşamaları ve Çeşitli Şekilleri
Baret Temeller Uygulama Aşamaları
Baret Temel Uygulamaları
Konu ile ilgili daha ayrıntılı bilgiye yazının en altındaki belirttiğimiz kaynaklardan ulaşabilirsiniz.
Her temel türünün avantajları olduğu gibi dezavantajlarının da olduğu unutulmamalıdır.
Konu ile ilgili faydalı olabilecek çeşitli kaynaklar:
Burada yayımlanmasını şu an için uygun görmediğimiz Uğur Ersoy’un Betonarme – II (Döşemeler ve Temeller) kitabı. (İnternetten veya kitapçılardan satın alabilirsiniz.)
Delme (fore) kazıklar ile ilgili TS 3167 – 3168 – 3169 standartları. TSE’den satın alabilirsiniz.
Baret Temeller ile ilgili Prof. Dr. Turan Durgunoğlu’nun hazırlamış olduğu faydalı bir kaynak.
Arş. Grv. Zeynep Algın’ın hazırlamış olduğu temeller ile ilgili oldukça faydalı güzel bir kaynak.
Öğr. Grv. Cahit Gürer’in hazırlamış olduğu temel sistemleri isimli bir kaynak.
İlgili Diğer İçerikler
- RADYE TEMEL (AMPATMAN) KALIBININ İMALATI
- KİRİŞSİZ RADYE TEMEL DONATI İMALATI
- Prekast ve Prefabrikasyon
- Değiştirilmiş Mercalli Şiddet Ölçeği
- ASIL SUÇ BİZ İNŞAAT MÜHENDİSLERİNDE OLABİLİR Mİ?
- Deprem
- SU YALITIMI ve TEMEL BOHÇALAMASI
- Donatı Ağırlık Hesabı
- Medvedev – Sponheuer – Karnik Ölçeği
- TEMEL KAZISI ve HAFRİYAT İŞLERİ
- Richter Ölçeği
- ÇELİK BİNA İNŞAAT AŞAMALARI
- Donatı Tahvil Hesabı
- Moment Magnitude Ölçeği
Yeni Yazılardan Haberdar Olun
Yeni içerikler yayınlandığında e-posta ile bildirim almak için abone olun.


































[…] yükün uniform şekilde yayılmasını sağlar. Sürekli temellerde de aynı işlevi görür. “Temeller ve Temel Çeşitleri” isimli yazımızdan bunu daha iyi anlayabilirsiniz. Sürekli temel kirişlerinin kolon […]
Elinize emeğinize sağlık. Görsel açıdan, bilgi açısından çok güzel içerikler mevcut. Lütfen yeni içerikler üretmeye devam edin. Teşekkürler.
Cox gözel izah olunub
güzel bilgiler emeğinize sağlık